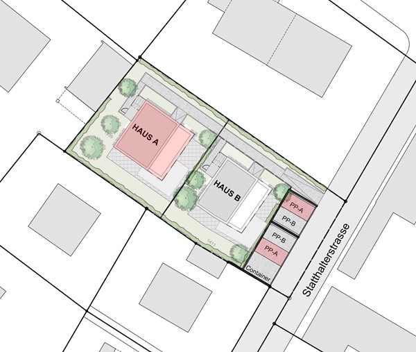
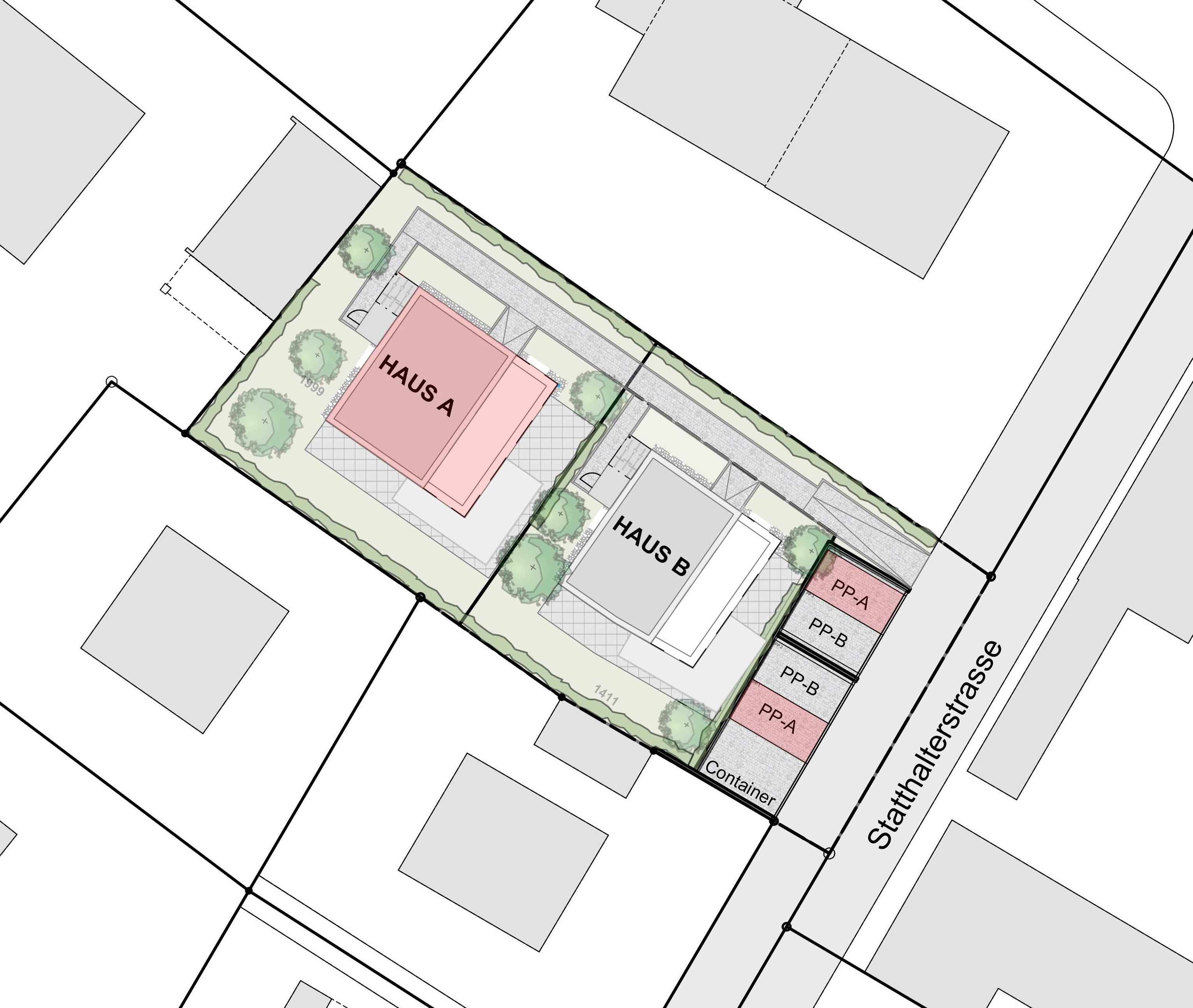
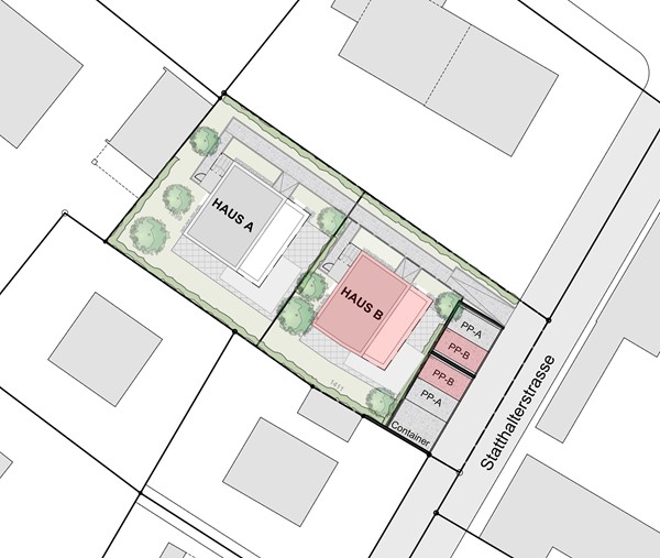
Einfamilienhäuser "Statthalterstrasse 22", Bern
Hier wird ihr Wohntraum wahr!
Zwei exklusive, freistehende 5 ½ - Zimmer - Einfamilienhäuser
Moderne Einfamilienhäuser mit Carport und Aussen-Parkplatz
Verkaufsbroschüre anfordern Preise & Pläne
Folgende Punkte zeichnen unter anderem unsere Überbauung zu Ihren Vorteilen aus:
Massivbauweise mit Holzfassade, Sitzplatz, Balkon, Dachterrasse.
Erdsonden-Wärmepumpe pro Haus.
Fixer Preis, Grundstück und schlüsselfertiges Einfamilienhaus inbegriffen.
Mitbestimmung beim Innenausbau.
Keine Baukreditzinsen.
Ruhiges zentrumnahes Wohnquartier. Familienfreundlich.
Gemeinde Bern-Bümpliz (3018)
Einwohner
17'000 (Bern-Bümpliz) / 146'000 (Stadt-Bern)
Steueranlage
Kanton: 3.03 / Gemeinde: 1.54
Öffentliche Verkehrsmittel
Buslinie Nr. 32, Tram Nr. 7
Auto
Autobahnanschluss in der Nähe
Spital/Ärzte
Spitäler Bern, sämtliche Ärzte und Zahnärzte in Bern vorhanden
Schulen/Bildung
Kindergarten, Primarschulen Real- und Sekundarschulen Berufs- und Weiterbildungszentren
Vereine/Freizeit
Diverse Kultur- und Sportvereine, Schwimmbäder Sport- und Freizeitanlagen, Kino’s
Einkaufsmöglichkeiten
Einkaufscenter Westside, Migros, Coop, Aldi, Schuh- und Sportgeschäfte, Käsereien, Bäckereien
Bank/Post
Valiant Bank, UBS, BEKB
Lageplan Bern-Bümpliz
Preise und Pläne
Verkaufsbroschüre anfordern

Immobilienvermarkter
Hans-Ulrich Baumann
hu.baumann@nerinvest.ch 032 312 80 60


